For Sale, Freehold
£380,000








Status :
None
DEVELOPERS DREAM!! 2-BEDROOM MID-TERRACE HOUSE – THROUGH LOUNGE – SEPARATE KITCHEN – FIRST FLOOR SHOWER ROOM – ADDITIONAL GROUND FLOOR WC – WALKING DISTANCE TO EAST HAM UNDERGROUND STATION & HIGH STREET – POPULAR BURGES ESTATE – NEEDS MODERNISATION – CHAIN-FREE – £380,000 (GUIDE PRICE)
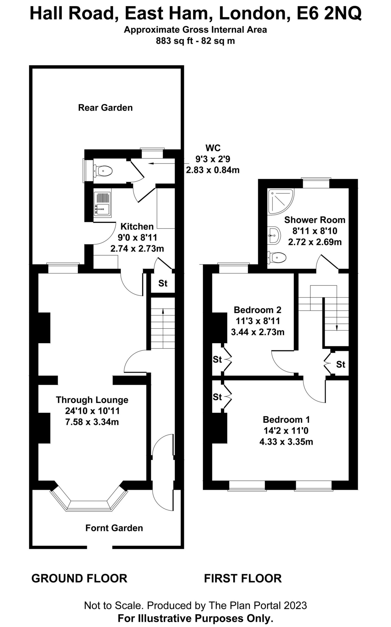
Developers Dream!! ARQ Homes are excited to present this probate sale of a chain-free two-bedroom mid-terrace house situated on Hall Road of popular Burges Estate in East Ham. This property consists of: a through lounge; separate kitchen; two double bedrooms; a good size first floor shower room; and an additional ground floor WC.
This is a real ‘Homes under the Hammer’ style project, essentially in a need of enhancement throughout and looking for an aspiring property moderniser or simply a new owner to renovate this blank canvass to their personal taste. It also offers an opportunity to extend the property to rear and second floor (subject to Newham council planning permission).
The property is located in a well sought-after Burges Estate of East Ham which makes it extremely accessible. The East Ham Underground Station (District Line) is only at 12 minutes’ walk (0.6 miles). There is a close proximity to the East Ham High Street offering access to all local amenities and to the Barking Road, providing 24 hours bus service to Central London. In addition, good access to North Circular Road (A406) provides excellent commute connection for those traveling to and out of Central London.
Rental Income:
ARQ Homes would estimate a rental in the region of £21,600- £24,000 per annum, as a single household rental.
ARQ Homes are ARLA and NAEA accredited. We offer a comprehensive Lettings, Management and Rent Guarantee Service. If you are considering a ‘Buy to Let’ purchase, our lettings team will be delighted to give you advice including guidance on Newham’s Landlord Licensing Scheme.
Note: ARQ Homes always quote a conservative figure for rental, however you could increase your rental as multi occupancy; this would be subject to Newham council licensing approval.
Sellers Situation: This is a probate sale, and the seller will be offering the sale on a chain-free basis.
ARQ HOMES do not charge buyers any fees for assisting them to the purchase the property. Our service to buyer is for free.
Tenure: FREEHOLD
Council Tax Band: C
EPC Rating: D
***All viewings are via appointment only***
Property Description
Front Garden:
Paved floor.
Brick-built walls to all sides.
Double glazed front door.
Ground Floor Hallway:
Carpeted floor.
Wooden door.
Carpeted stairs to first floor.
Radiator.
Gives access to: through lounge.
Though Lounge: (7.584m into the bay x 3.349m)
Carpeted floor.
Double-glazed bay window to front.
Double glazed window to rear.
Two chimney breasts to side.
Two radiators.
Gives access to: kitchen.
Kitchen: (2.733m x 2.747m)
Vinyl floor.
Double glazed window to side.
Double glazed frosted door to rear garden.
Eye-level and base-level units with rolled-edge work top.
Single-drainer sink with mixer tap.
Gives access to: additional ground floor WC and Rear Garden.
Additional Ground Floor WC: (2.835m x 0.847m)
Laminated floor.
Partly tiled walls.
Single-glazed frosted window to side and rear.
Low-level WC.
Plumbed for washing machine.
Radiator.
Rear Garden:
Wooden fence panels to rear and sides.
Wooden storage shed to rear.
Small green house to rear.
First floor landing:
carpeted floor.
Storage cupboard.
Gives access to: bedroom one, bedroom two, shower room and loft hatch.
Bedroom One: (3.351m x 4.335m)
Carpeted floor.
Two double-glazed windows to front.
Chimney breast with storage cupboard to side.
Radiator.
Bedroom Two: (3.418m x 2.738m)
Carpeted floor.
Double-glazed windows to rear.
Chimney breast with storage cupboard to side.
Radiator.
Shower Room: (2.722m x 2.699m)
Vinyl floor.
Double-glazed frosted window to rear.
Partly tiled walls to all sides.
Shower cubical with clear sliding doors.
Low-level WC.
Hand basin with mixer tap.
Wall mounted Vaillant combi boiler.
Radiator.
Misrepresentation Act 1967
The information provided about this property does not constitute or form part of an offer or contract, nor may it be regarded as representations. All interested parties must verify accuracy and your solicitor must verify tenure/lease information, fixtures & fittings and, where the property has been extended/converted, planning/building regulation consents. All dimensions are approximate and quoted for guidance only as are floor plans which are not to scale and their accuracy cannot be confirmed. Reference to appliances and/or services does not imply that they are necessarily in working order or fit for the purpose.
Descriptions of the property are subjective and are used in good faith as an opinion and NOT as a statement of fact. Please make further specific enquires to ensure that our descriptions are likely to match any expectations you may have of the property. We have not tested any services, systems or appliances at this property. We strongly recommend that all the information we provide be verified by you on inspection, and by your Surveyor and Conveyancer. Misrepresentation Act 1967 The information provided about this property does not constitute or form part of an offer or contract, nor may it be regarded as representations. All interested parties must verify accuracy and your solicitor must verify tenure/lease information, fixtures & fittings and, where the property has been extended/converted, planning/building regulation consents. All dimensions are approximate and quoted for guidance only as are floor plans which are not to scale and their accuracy cannot be confirmed. Reference to appliances and/or services does not imply that they are necessarily in working order or fit for the purpose.
Woodmans Street North Woolwich London E16 2NF